
Très bel appartement à proximité des écoles et commerces Traversant, balcon
Agencement
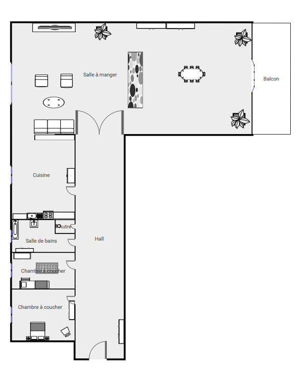
Nombre de pièces: 3
1 salle de bain
1 toilette
Cave: 1
Chauffage Individuel
Cuisine Américaine Amenagée Equipée
Jardin
Exposition: EO
Type de chauffage: Radiateur
Eau froide: Collective avec millième
2ème étage / 9
Financière
Taxe foncière: 800 €
Charge de copropriétés: 1 200 €
Honoraires: 10 000 €
Prix net: 198 000 €
Prix hors honoraires acquéreur: 198 000 €
Honoraire à la charge: Vendeur
A savoir
Référence: 2093
Ascenseur
Année de construction: 1 973
Nombre de lots: 60
Interphone
Calme
Lumineux
DPE: D
Montant estimé des dépenses annuelles d'énergie pour un usage standard :
entre € et €
Pièces / Surfaces
Surface totale: 70 m²
Surface séjour: 34 m²
Chambre 1: 10 m²
Chambre 2: 9 m²
Cuisine: 0 m²
Dressing: 2 m²
Hall: 9 m²
Loggia: 3 m²
Pièce de vie: 34 m²
Placard: 0 m²
Salle de bains: 4 m²
W.C.: 1 m²
